Aan de rand van de Kroondomeinen heeft op deze prachtige locatie een kleine bungalow gestaan. De opdrachtgever heeft de potentie van het perceel erg goed gezien, met uitzicht over de landerijen. Door gebruik te maken van de aanwezige niveauverschillen in het terrein, stelt deze woning ondanks zijn formaat zich toch bescheiden op. De tuin is als een boslandschap ingericht, waardoor de overgang tussen prive en openbaar zacht zijn.

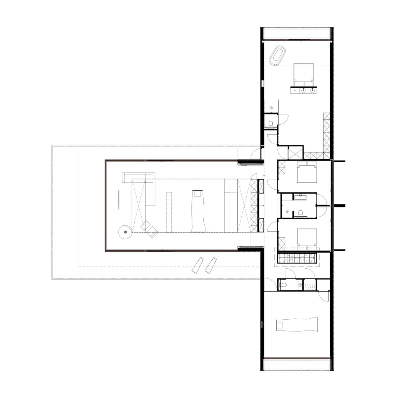
In het gesloten bouwblok bevinden zich de private ruimtes, zoals kantoor en slaapkamers. In het souterrain bevindt zich de entree, fitnessruimte en wijnkelder. De gevel is bekleed met bamboo, wat ook is toegepast in de luifels en terrassen.

De luifels aan de woning zorgen in combinatie met de bomen voor een natuurlijke zonwering, zodat ondanks de grote glaspartijen de zonwarmte beheersbaar blijft.

De grote glaspartijen in het leefgedeelte zorgen er voor dat je de omgeving ook binnen ervaart. Via grote lichtstraten in het dak is een goed daglichtklimaat binnen ondanks de omliggende bomen volop aanwezig. Het interieur is een combinatie van lichte en warme tinten en materialen.